Drypool Bridge
Drypool bridge is a Scherzer-type rolling bascule bridge, constructed in 1961 to replace the earlier bridge from 1889. The first image below shows the plan for the new bridge as presented to Parliament for approval between 1951 and 1952.
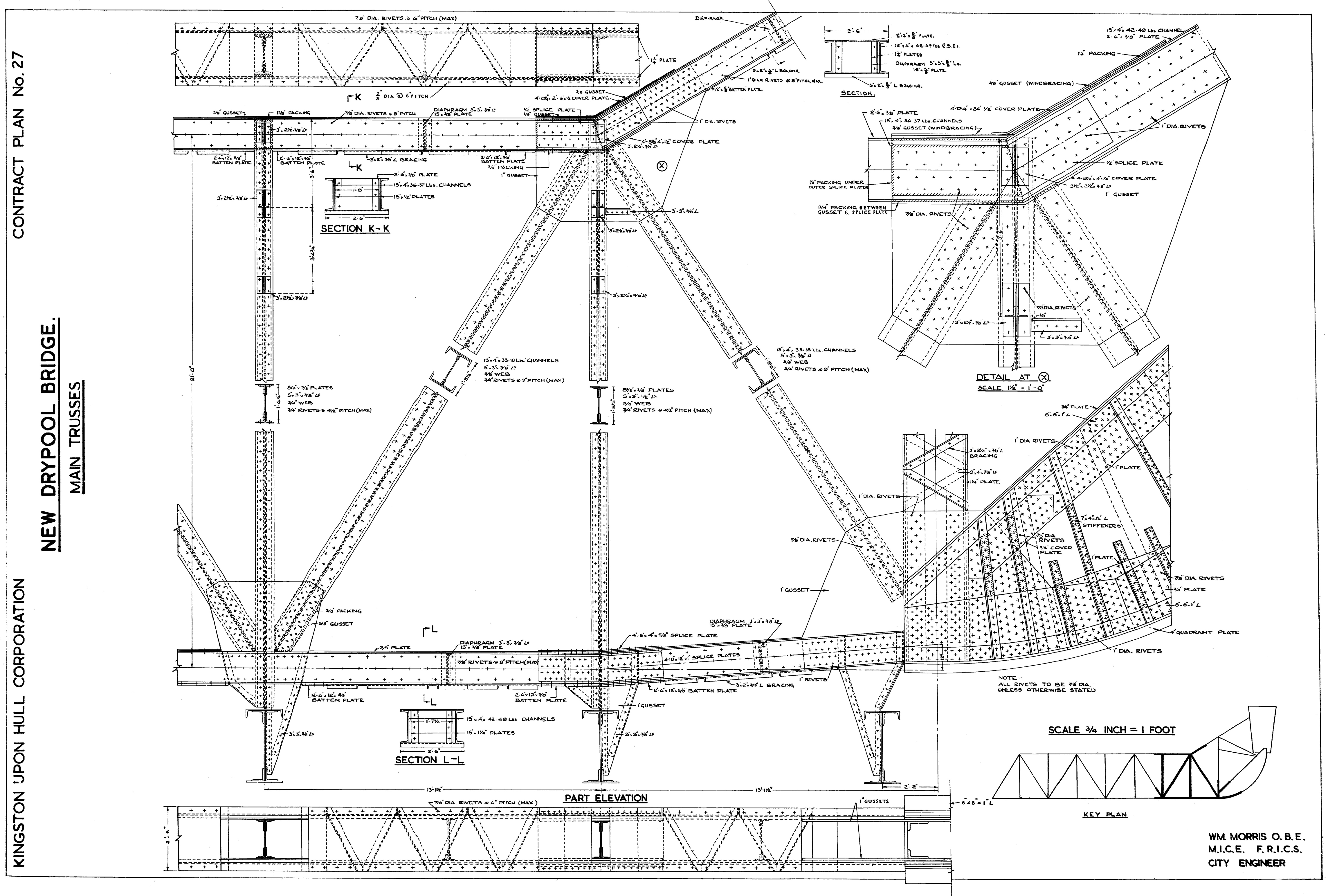
The plans have been restored from scans of the originals, and in Drypool’s case good enough to present the full illustrated sections of the trusses from nose to heel end from 1956, along with site plan, sectional elevations and lavatory accomodation. As with all the plans the best way to view them is to click on the image and zoom in to see the detail.
There are many images of Drypool and below the plans is a gallery showing how photographers have captured the many sides to this wonderful old bridge over the years.

In Parliament Session 1951 – 1952. Plan and Section

Site Plan Wm. Morris, City Engineer

Main Trusses. Contract Plan No. 25

Main Trusses. Contract Plan No. 26

Main Trusses. Contract Plan No. 27

Heel End. Contract Plan No. 29 1956

Sectional Elevation Looking West



Under construction 1960 and open in 1961, HDM Archive

The barge Graveller with Alec Carrigan on the bow is the first vessel to pass under Drypool on its first lowering in 1961 with bridge engineers seen walking down the bridge as it closes to river traffic for the first time. Thanks to Les Reid for the photograph.

The New Drypool Bridge photographed in 1961 by Frank Drasdo

Peter Marshall: Burcom Sand moored above Drypool Bridge, River Hull, Hull 1985

Opening for a coaster in 1990 by Ian1000

Misty Morning Drypool Bridge by Syd Young in 2013

Drypool Bridge and the demolition of Clarence Mill, October 2015, by Syd Young

Phil Withers: Drypool Bridge from the Humber Keel Comrade at Open Bridges, 22.09.2017

And not forgetting the aforementioned lavatory accomodation
Rich and Lou Duffy-Howard
If you’ve enjoyed the post, we’d be delighted if you’d subscribe to our blog. It’s free and you can do so by entering your email below: