2 Sutton Road Bridge

Hull’s River Bridges: Sutton Road Bridge 1937

Sutton Road Bridge is a Scherzer type rolling bascule bridge, built by the Cleveland Bridge and Engineering Company and opened on 8 July 1937, to complete the Corporation’s ring road at the time.

The photograph, on the left below, from Britain from Above shows the new Sutton Road taking shape in August 1931 and the location of the new bridge with the original site plan and additional mooring posts on the right.

You can click on any image to open the galleries and enlarge the images.

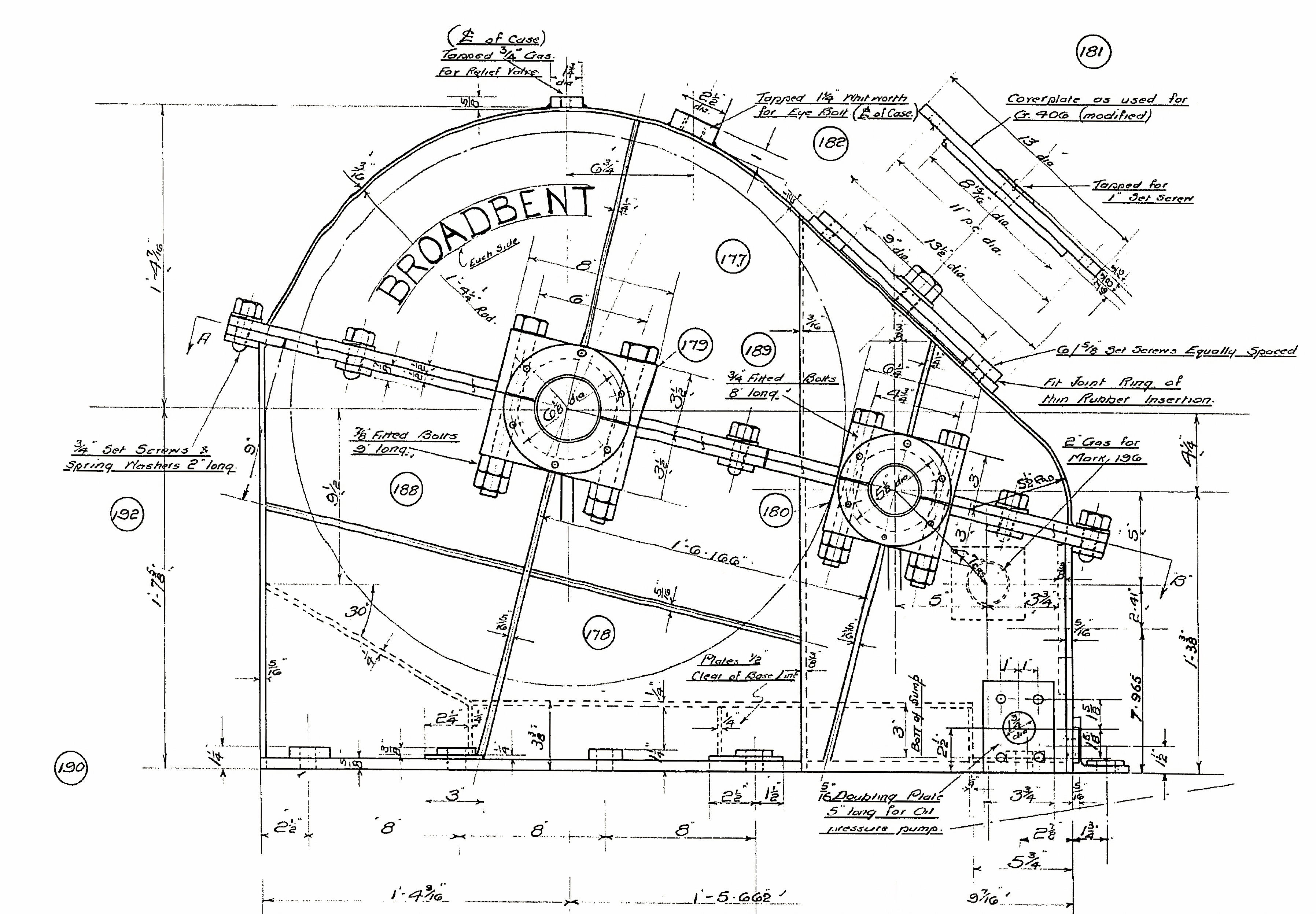
The gallery below contains some of the original plans for the bridge, you can click on any individual image in the gallery and zoom in to see the detail.

Sutton Road Bridge, Longitudinal Section

Main Operating Machinery for Rolling Lift Bridge

Sutton Road Details of Main Truss Tank End

Machinery House and Portal looking west

Site Plan East Bank

Machinery House and Portal

Details of Broadbent fabricated gear house casing

This gallery of photographs show the lifting gear and inner workings of the bridge in 2013 and from a visit we made for the original Open Bridges event in 2017. Here the bridge was raised for composer John Stead to record the sounds of the lifting bridge to incorporate into his musique concrète commision ‘Moments in Time’ to be performed at the event in the Stage at the Dock on the night.

The galleries are best viewed by clicking on an image and scrolling through.

Photographs by Richard Duffy-Howard

Sutton Road Bridge and environs 1956, left and 1973, right, reproduced with the permission of the National Library of Scotland

The two photographs in the gallery below are both from unknown photographers. Both show the bridge bearing a full lift of approximately 82 degrees. On the left is the naval tug ‘Roysterer’ built in Beverley by C. D. Holmes in 1972, for the Ministry of Defence Royal Maritime Auxiliary Service, and heading south to the Humber, with a host of onlookers.

The photograph on the right shows Sutton Road closed for river traffic in the 1960s. If you know who the photographers are, please get in touch.

Steve Abbott: How Sutton Road Bridge Saved My Life

“It was autumn 1976, and I was a seventeen-year old, newly arrived at Hull University.  Sometime in my first week, whilst getting to know the student union bar, I bumped into Dave – someone I hadn’t seen for a couple of years, and who I had no idea was in Hull.  Dave had been one of my Scout leaders 270 miles away on the south coast, but he’d suddenly and abruptly disappeared – no one knew where to – when his marriage broke up, and now he was a mature student at my university; small world.

Despite the age difference – Dave was probably in his forties whilst I was a pimply teenager away from home for the first time (and nearly half a century later I’m still here) – he took me under his wing and we spent quite a lot of time together that first year.  Our branch of scouting was the Sea Scouts, which meant lots of sailing, rowing and canoeing, and as a member of the university rowing club, based on the bank of the River Hull at Oak Road playing fields, Dave invited me to join him a few times.

One very cold and misty afternoon in late November we took out a ‘coxed pair’ rowing skiff; this was long, very narrow (thus tippy), took two rowers with a single oar each, and a cox who steered.  Fortunately, Dave knew many young ladies, and persuaded one of them to join us in that capacity; she was bundled up in hat, gloves and a thick, bulky coat due to the wintry weather, and we wore nearly as much.  However, as was the norm, none of us was equipped with a lifejacket or buoyancy aid.

We set off upstream, with the tide behind us, helping us on our way.  We’d only gone a few hundred yards, when one of us – almost certainly me – got the oar stuck in the water in the horizontal position (‘caught a crab’ in technical parlance), which had the immediate effect of tipping the boat over, and us, into the freezing, muddy River Hull water. Fortunately, and despite our bulky clothing and lack of flotation devices, we all surfaced and grabbed hold of the sides of the boat – but could do little else. 

The tidal current swept us slowly towards Sutton Road Bridge, and in those days it was constantly manned, at least when water levels were high enough for shipping.  The bridge men were commendably vigilant, and, spotting us drifting their way, came out and managed to grab hold of the boat – and us. Freezing cold and saturated, they took us into their luxuriously heated control room, and provided reviving tea.  They also allowed us to use their ‘phone to call for assistance and transport – at that time provided by the much missed Hull Telephones department.

So, Sutton Road Bridge – in the guise of its wonderful bridge men – quite literally saved the lives of me and my sodden frozen companions!”

(P.S.  Perhaps unsurprisingly, Dave never again invited me to row with him!)

Steve Abbott September 2025

Rich and Lou Duffy-Howard

If you’ve enjoyed this article, we’d be delighted if you’d subscribe to our blog. It’s free and you can do so by entering your email below:

Leave a comment