Hull’s River Bridges: Wilmington Railway Swing Bridge, 1907, Wincolmlee
Hull City Records Office (TSJ 28) describes Wilmington as:
“a swing railway bridge, now a footbridge, spanning the River Hull. Circa 1870 and 1905, for the North Eastern Railway. Converted and restored in 1991. Arch topped riveted wrought-iron girders form the span, which is carried on a roller bearing central pivot. Remains of a footway on the north side. Above the centre, a riveted post and beam structure with railed platform, carrying a wooden cabin with matchboard cladding and hipped lead roof. On the west side, 4 large glazing bar windows. At the south end, a projecting porch reached by c20 steel steps. At the north end, a canted wooden oriel window to the left, and a 2-light glazing bar window to the right. The bridge is operated by mechanism in the cabin engaging with a ring gear on the pivot. The mechanism is complete and operable.”
The council’s blue plaque on the bridge states that it was built for the North Eastern Railway and opened on Friday 10th May 1907. It replaced a single track bridge built in 1853 for the York and North Midland Railway.
It is perhaps one of the most photogenic of Hull’s river bridges and now being easily accessible as footpath and cycle route, joining Wincolmlee and Sculcoates to the west with Stoneferry and Wilmington to the east. A working visit to the bridge in February 2013 is where the seeds of the Open Bridges project were sown.
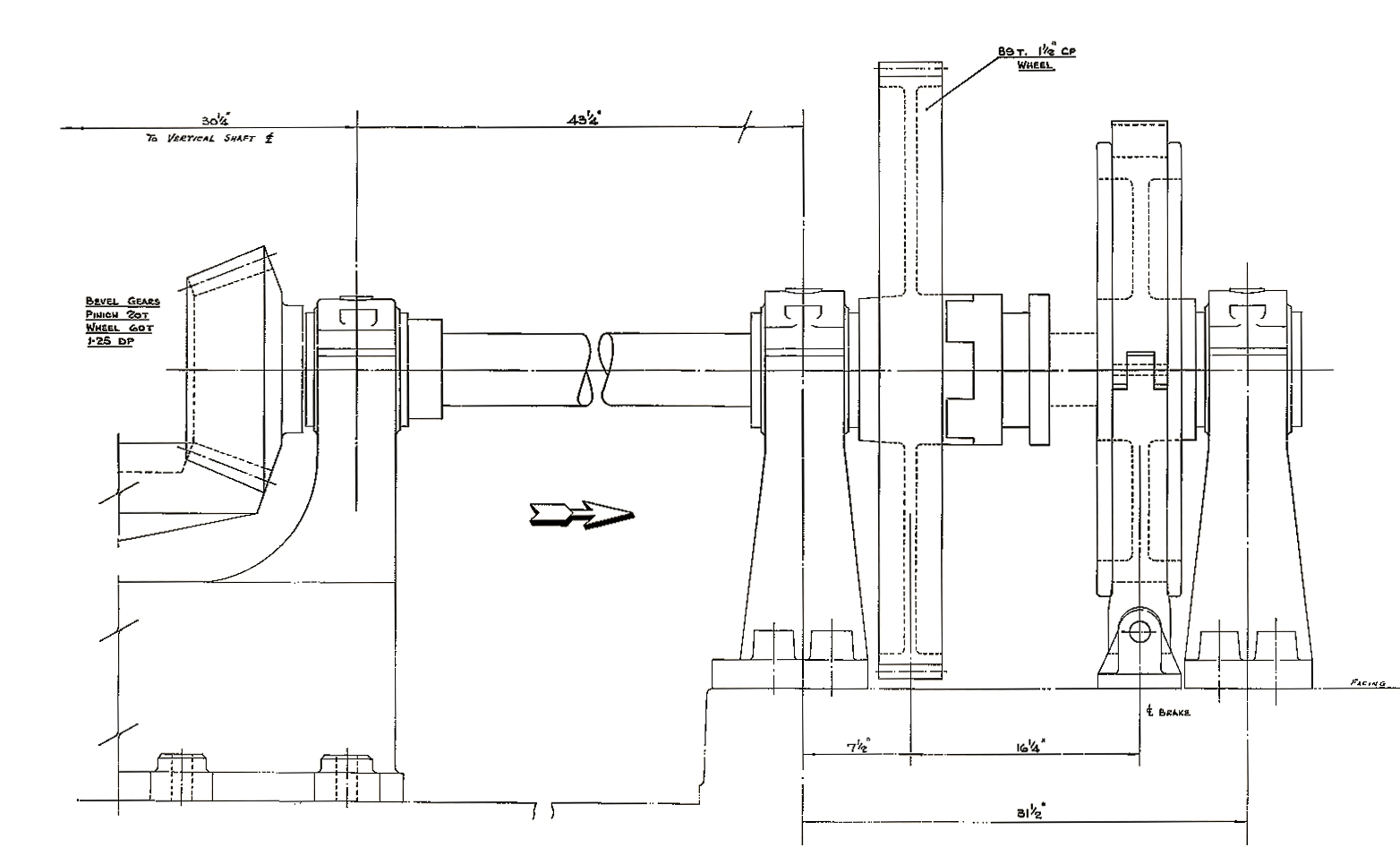
Click on each plan and zoom in to see the detail.


Photograph by Peter Marshall: River Hull, Wilmington Swing Bridge, Hull, 1983


Wilmington Drive Gear Assembly


Wilmington Bridges opens for the MV Syntan for Open Bridges in 2017, photograph by Dave Todd


Wilmington new bridge and old taken on 15th April 1907


Photographs by Peter Marshall: Wilmington 1980 (left) and 1983 (right)


Bridge Movement Control Panel






Wilmington Bridge 2013

Wilmington Bridge 18.04.1970

Wilmington swings for the Humber Keel Comrade in 2019 by Syd Young
There are a number of photographs in circulation of the first train to go over the new Wilmington Bridge, however the photograph below shows the first barge to sail through on 11th May 1907, watched by a group of children from Wincolmlee and onlookers on the bridge. We’ve include a detail showing the conversation between the barges skipper and the bridgemaster.

Wilmington Bridge and Barge 11th May 1907

There is a fascinating article on the building of Wilmington Bridge on the Forgotten Relics website here http://www.forgottenrelics.org/bridges/wilmington-swing-bridge/
Forgotten Relics “records and celebrates the UK’s disused railway structures, still standing as monuments to the period of ambition, courage and endeavour during which they were built”. It’s a wonderful site.
Rich and Lou Duffy-Howard
If you’ve enjoyed the post, we’d be delighted if you’d subscribe to our blog. It’s free and you can do so by entering your email below: